Donostia - San Sebastián - El Antiguo - Antiguo
Vivienda situada en pleno corazón del Barrio del Antiguo de Donostia-San Sebastián con amplias posibilidades de reforma y nueva distribución.
- En venta por
- 630.000€
Extraordinaria ubicación con amplias posibilidades de reforma y nueva distribución.
Superficie: Vivienda de 84 m2 útiles, 99 m2 construidos.
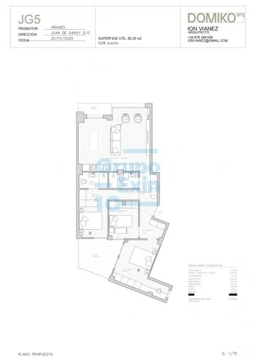
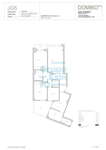
Distribución actual: Consta de hall-recibidor, salón totalmente exterior (18,35 m2), cocina totalmente equipada (9,54 m2) con acceso a espacio office con despensa de 8,35 m2, y tres habitaciones: una exterior (11,21 m2) con balcón orientado a la Calle Maestro Guridi, y otras dos habitaciones (de 10,62 m2 y 6,58 m2) orientadas ambas a patio comunitario. Dispone además de dos baños completos en zona de pasillo (3,63 m2 y 2,08 m2).
Características: Edificio de hormigón situado entre la Avenida Zumalakarregi y Calle Matía. La distribución actual es la siguiente: Exterior a la Calle Maestro Guridi el salón- comedor y una de las habitaciones. La cocina, baños, zona office y las otras dos habitaciones se orientan a un patio comunitario. Calefacción y agua caliente individual de gas natural. Ascensor a cota cero. Portal recientemente reformado sin barreras arquitectónicas. Videoportero. Sin derramas pendientes. ITE en vigor.
Estado actual de la vivienda: La vivienda necesita reforma. Actualmente dispone de una distribución algo desactualizada contando con la posibilidad de adecuarla a los gustos y a las necesidades de los nuevos propietarios. Ponemos a su disposición una simulación virtual a través de infografías que plantean una posible reforma de la vivienda acompañado de un presupuesto de la obra a realizar. En las infografías que se presentan se puede observar, entre otras, la creación de un espacio único de concepto abierto y exterior de más de 31 m2 (salón-comedor y cocina).
Ubicación: Situada en una calle muy tranquila y sin apenas tráfico del barrio del Antiguo, a un paso de las playas y del centro de la ciudad. Dispone de todos los servicios necesarios al alcance (comercio, ocio, zonas deportivas, ambulatorio, transporte público, etc…), contando además con excelentes conexiones de salida y entrada de la ciudad.
Una vivienda con muchas cualidades y posibilidades para lograr un espacio de gran confort en uno de los barrios más exclusivos de la ciudad. Interesante oportunidad también para inversores debido a la alta demanda de alquileres en esta zona, su tipología y características.
Condiciones: No se incluye en el precio de venta el mobiliario, a excepción de los muebles altos y bajos de cocina y baño. Los gastos relativos al Impuesto de Transmisiones Patrimoniales, los honorarios de notaría y del registrador de la propiedad, serán por cuenta del comprador. Los gastos de honorarios de comercialización y la plusvalía municipal, serán por cuenta del vendedor. El presente anuncio no es vinculante, se muestra a título informativo y no contractual. Para más información contacte con el asesor inmobiliario.
Características
- Habitaciones: 11m2, 10,6m2 y 6,5m2
- Baños: 3,6m2 y 2m2
- Salón: 18m2
- Cocina: 9,5m2
- Balcón
- Orientación Oeste
- Altura 1°
Equipamiento
- Calefacción Individual gas natural
Edificio
- Ascensor hasta la calle
Gastos
- 45
Consumo eléctrico
- Consumo
- kwh/m2 año
Emisiones de CO²
- Emisiones
- kgCO2/m2 año
El certificado energético nos da información sobre la calidad de la construcción y equipamiento de una vivienda. Una mejor eficiencia energética le favorece económicamente y es mejor para el medio ambiente.





















